Скачать проект КОС
Канализационно-очистные сооружения (КОС) играют ключевую роль в обеспечении экологической безопасности и бесперебойной работы промышленных и жилых объектов. Грамотно спроектированное сооружение позволяет не только соответствовать нормативным требованиям, но и сократить расходы на строительство, обслуживание и модернизацию. Компания «ЭкоКомпозит» предлагает полный спектр услуг по проектированию КОС — от инженерных изысканий до подготовки всей необходимой документации. Мы создаем современные, надежные и адаптируемые под будущие нагрузки решения.
Особенности проектирования КОС
Проектирование КОС — это не шаблонная процедура, а сложный, многоэтапный процесс, требующий высокой квалификации и глубоких знаний в инженерной и экологической сферах. Каждый проект разрабатывается с учетом специфики объекта, объема и состава сточных вод, возможностей подключения к инженерным сетям и требований к степени очистки.
Одной из частых проблем на объектах является несоответствие действующих сооружений современным нормативам, в том числе СП 30.13330.2012 и СП 32.13330.2012. Устаревшие системы потребляют слишком много энергии, плохо справляются с очисткой сточных вод и не имеют возможности расширения. В таких случаях специалисты «ЭкоКомпозит» предлагают два решения: реконструкцию или проектирование КОС с нуля.
Реконструкция актуальна, когда сооружение физически существует, но его характеристики не отвечают требованиям. Инженеры проводят всесторонний анализ оборудования и систем водоотведения, подбирают новые технологии и оборудование, обеспечивающее повышение эффективности без остановки производственных процессов.
Строительство с нуля необходимо, если очистных сооружений нет или они находятся в аварийном состоянии. В этом случае проектирование требует дополнительных шагов — от выбора участка до получения согласований в контролирующих органах. Главное преимущество нового сооружения — возможность заложить в проект все требования к энергоэффективности, автоматизации и масштабируемости.
Этапы проектирования КОС
Компания «ЭкоКомпозит» придерживается четко выстроенной схемы проектирования КОС, где каждый этап важен для достижения финального результата — надежного, долговечного и соответствующего нормам инженерного решения.
- Исходно-разрешительная документация. Первым этапом становится сбор исходных данных. Инженеры анализируют состав стоков, изучают техусловия на водо-, электро- и теплоснабжение, рассматривают план участка.
- Выбор площадки для строительства. Проводится обследование территории, включая здания, инженерные коммуникации и иные объекты. Этот этап важен для рационального размещения будущего сооружения.
- Топографическая съемка и инженерные изыскания. Оцениваются характеристики рельефа, несущая способность грунта и другие параметры, влияющие на проектирование КОС. Определяются точки подключения к водоотводным системам.
- Разработка технического задания. На основании собранных данных формируется четкое ТЗ с указанием параметров сооружения, типов необходимого оборудования и перечнем работ.
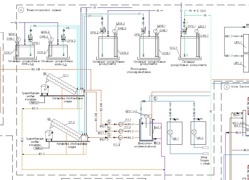
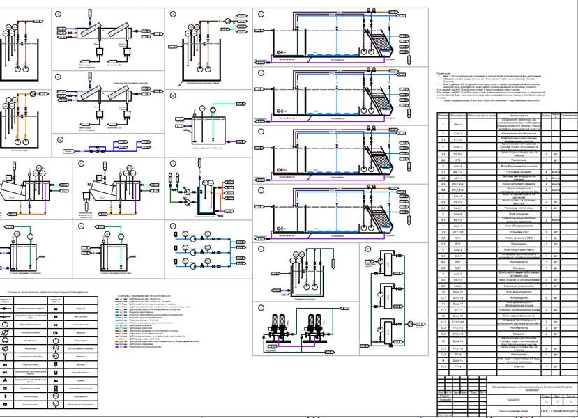
- Подготовка проектной документации. Создается архитектурно-инженерный проект, включающий текстовые и графические материалы, чертежи, расчеты и пояснительные записки.
- Прохождение экспертизы. Для получения разрешения на строительство проект проходит проверку на соответствие нормам безопасности и эффективности.
- Составление рабочей документации. Финальный этап включает разработку комплектов чертежей и документов для проведения строительно-монтажных работ. Здесь учитываются все инженерные решения, спецификация оборудования и схема монтажа.
Почему выбирают «ЭкоКомпозит»?
Мы не просто разрабатываем проекты КОС — мы решаем задачи бизнеса. Наша цель — создать надежное инженерное сооружение, которое будет эффективно работать в течение многих лет. Каждое решение адаптировано под конкретный объект, будь то промышленное предприятие, жилой комплекс или административное здание. Мы проектируем КОС с учетом возможного увеличения объемов сточных вод, внедряем автоматизированные системы управления и используем энергоэффективное оборудование.
Свяжитесь с нашими специалистами по телефону или оставьте заявку на сайте. Мы проконсультируем, подберем решение и начнем проектирование в кратчайшие сроки. «ЭкоКомпозит» — когда инженерный подход сочетается с экологической ответственностью.
.jpg)
-2.jpg)
.jpg)
-2.jpg)
.jpg)
-2.jpg)
.jpg)
-2.jpg)
.jpg)
-2.jpg)
-3.jpg)
-в-ДВГ-схемы-нет.jpg)
-в-ДВГ-схемы-нет-2.jpg)
-в-ДВГ-схемы-нет-3.jpg)